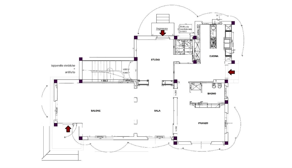
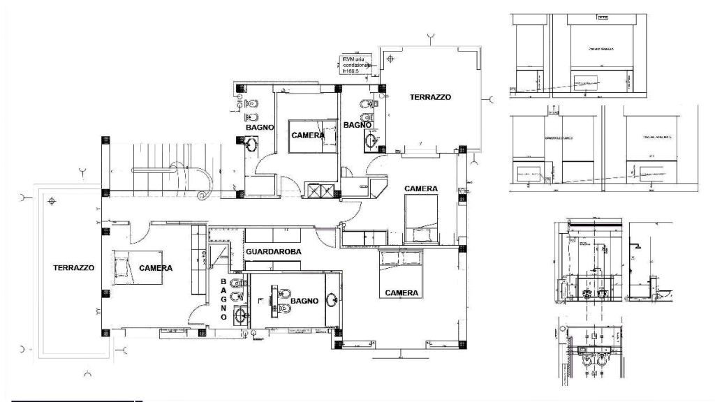
Nel meraviglioso contesto delle colline lecchesi, proponiamo una villa di mq. 500 completamente e finemente ristrutturata con giardino privato. La proprietà si sviluppa su due piani fuori terra e un piano seminterrato. Al piano terreno trovano la loro naturale collocazione il salone, la sala da pranzo, la cucina, lo studio e un bagno. Al piano superiore si trovano le quattro camere da letto padronale, i quattro bagni, il guardaroba e un terrazzo. Al piano seminterrato c'è il garage, l'area fitness, la lavanderia e la camera di servizio con bagno. Completa la proprietà il giardino di mq. 1.000 ca



