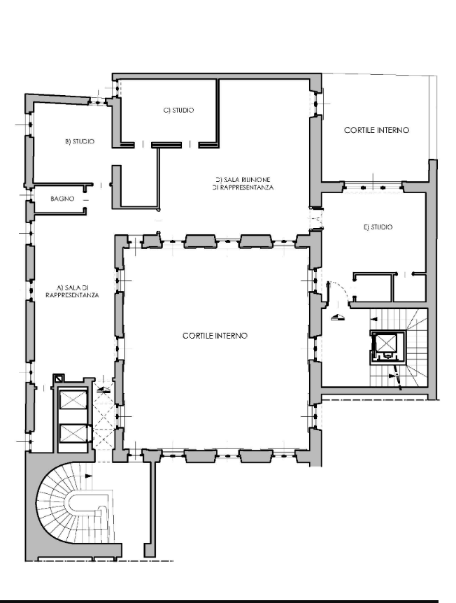
Nel cuore del quadrilatero della moda, luminoso ufficio di 180 mq situato al piano nobile di un edificio storico, progettato dall'architetto Perego. Questo spazioso ufficio offre 6 stanze, ideali per ospitare il tuo team di lavoro. Dispone inoltre di 2 bagni e 3 ingressi, garantendo una comoda accessibilità.<br />L'ufficio vanta una doppia esposizione e gode di una vista su tre cortili, garantendo una piacevole luminosità durante tutto il giorno. I dettagli di lusso come le boiseries, i marmi, il parquet e i seminati veneziani aggiungono un tocco di eleganza a questo spazio.I servizi inclusi come il riscaldamento e l'acqua calda centralizzati, l'aria condizionata autonoma, l'ascensore e il servizio di portineria offrono comfort e praticità. Inoltre, è disponibile un posto auto con un costo aggiuntivo di € 10.000, 00.
_jas8hreqgj.png)
_7zxt64jzgk.png)
_6egq56dkg0.png)
_lycple0665.png)
_f505qzzace.png)
_j1b6vjkyil.png)