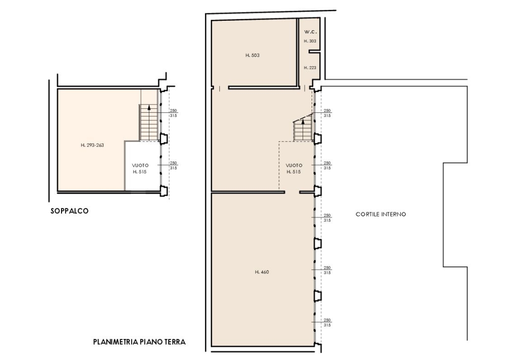
Loft in affitto in Via G. Donizetti 36, un'opportunità unica per chi cerca un ufficio spazioso e luminoso nel cuore della città. Questo loft di 170 metri quadrati è composto da un grande salone, due locali (uno soppalcato), un bagno e un antibagno. L'altezza del soffitto di 4,60 metri e le grandi finestre con vista sul cortile creano un'atmosfera unica e accogliente. Il pavimento in parquet e i dettagli architettonici in boiseries conferiscono un tocco di eleganza e raffinatezza. Il loft è dotato di riscaldamento centralizzato, aria condizionata e predisposizione per la cucina.



