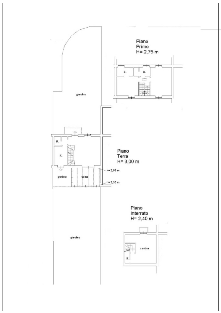
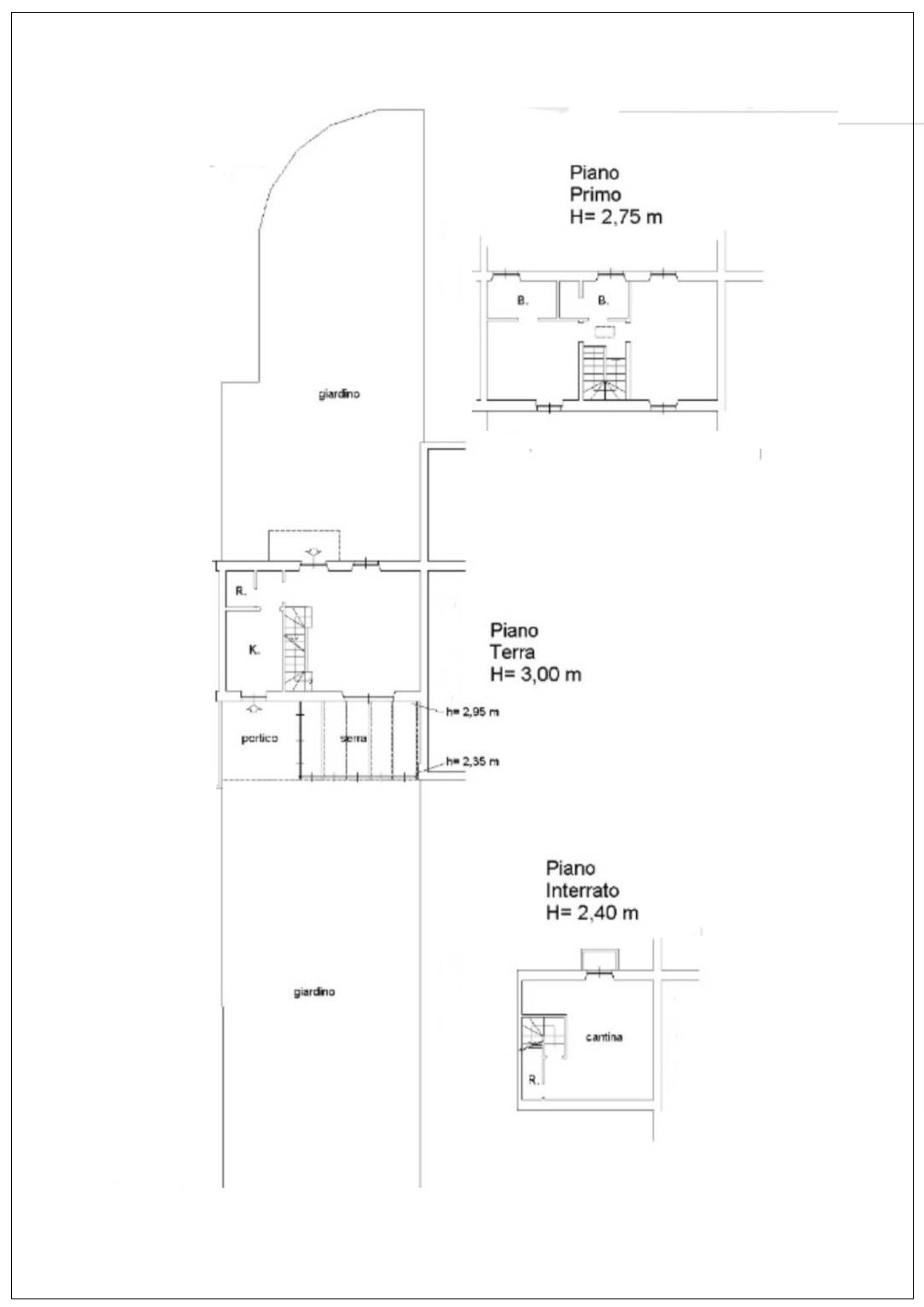
In via Lampugnano, a pochi passi dal rinomato parco di Trenno, proponiamo una villa unifamiliare con due ampi giardini privati. L'immobile, posto su tre livelli, presenta al piano terra un soggiorno molto luminoso con camino e una cucina abitabile, entrambi affacciati su una veranda vetrata con vista sul giardino interno privato, e bagno di servizio. Al primo piano disimpegno che porta a una camera matrimoniale con bagno privato, seconda ampia camera con angolo studio e bagno . Al piano seminterrato troviamo una taverna adibita ad oggi a studio, una cantina/dispensa e una lavanderia. Soffitti in legno con travi a vista, pavimenti cotto d'este al piano terra e parquet nelle camere. Completa la proprietà un posto auto di pertinenza. Possibilità doppio box nello stabile. Soluzione adatta alle famiglie che cercano un’abitazione dotata di ampi spazi sia interni che esterni immersi nella tranquillità e nel verde senza rinunciare alla vicinanza al centro comodamente raggiungibile grazie alla vicina fermata MM Bonola.
_qh0foylxnq.jpg)
_3vtp20gvcg.jpg)
_rz1bqrx41l.jpg)
_p2gtpi4aba.jpg)
_6wrwhqp135.jpg)
_du5zocdsbf.jpg)
_kr5f6wfvud.jpg)
_jvmo6ows53.jpg)
