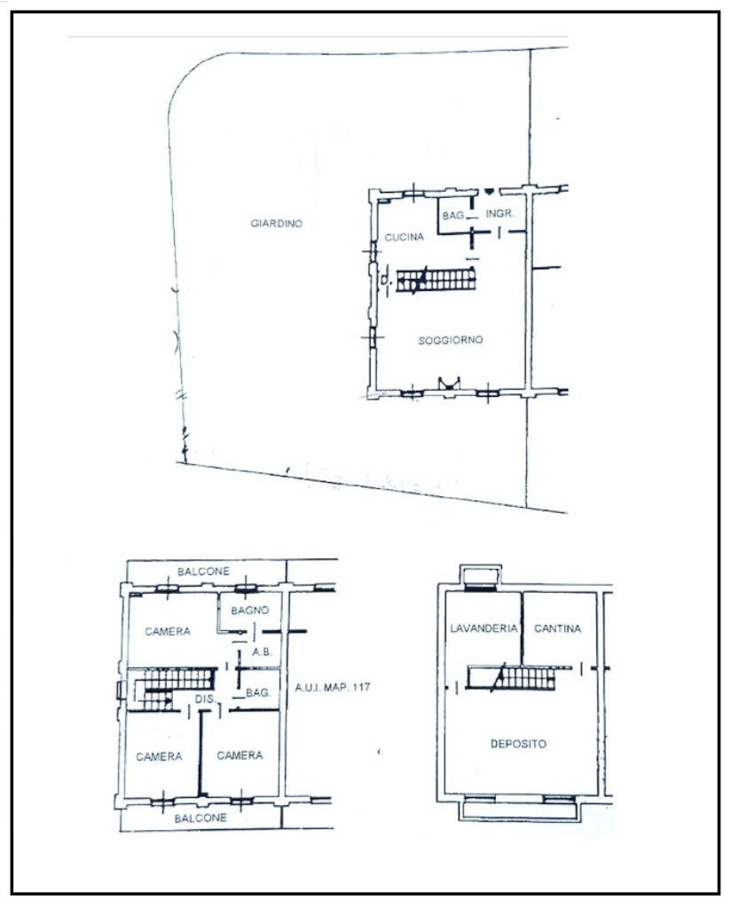
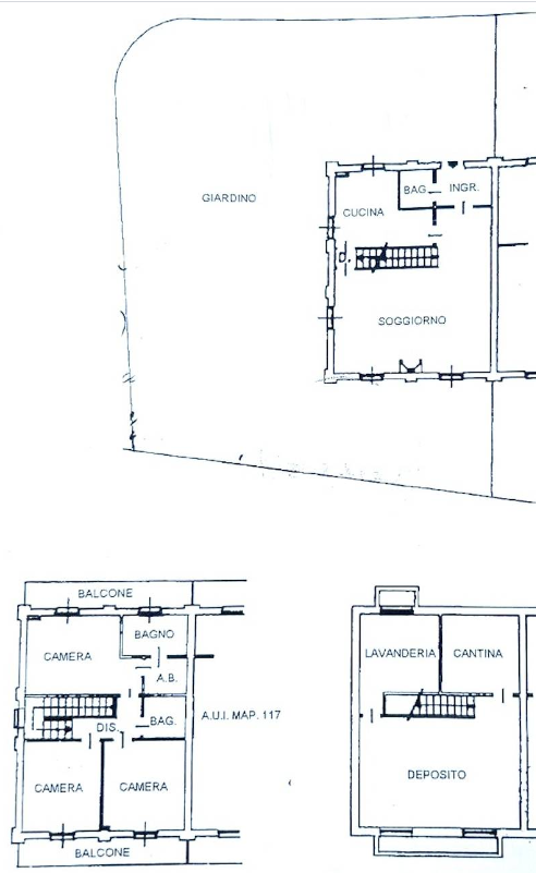
In via Lampugnano, a pochi passi dal rinomato parco di Trenno, proponiamo una villa unifamiliare con ampio giardino privato. L'immobile, posto su tre livelli, presenta al piano terra un ampio soggiorno molto luminoso grazie alle porte finestre con cui si accede al giardino privato che circonda la proprietà, cucina abitabile e bagno. Al primo piano disimpegno che porta alle prime due camere matrimoniali con affaccio sulla balconata interna, camera matrimoniale con angolo cabina armadio e bagno privato con balconata interna e secondo bagno. Al piano seminterrato troviamo una taverna che può essere adibita a studio, palestra e angolo TV, una cantina/dispensa e un'ampia lavanderia. Completa la proprietà un box doppio e un posto auto di pertinenza. Soluzione adatta alle famiglie che cercano un’abitazione dotata di ampi spazi sia interni che esterni immersi nella tranquillità senza rinunciare alla vicinanza al centro comodamente raggiungibile grazie alla vicina fermata MM Bonola e MM Lampugnano.
_2sbrz9w8z1.png)
_1trnzxds9d.png)
_4cep35biez.png)
_3gu73wioon.png)
_rogunhrymm.png)
_7xgw4e1d46.png)