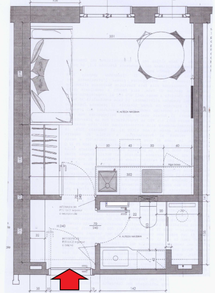
Al settimo e ultimo piano di un palazzo signorile, attico monolocale di mq. 25, arredato e completamente ristrutturato, con riscaldamento e acqua calda centralizzati, ascensore e portineria. Splendida vista a sud sul Duomo e il Quadrilatero della Moda
_xo7mv5s4ux.png)
_4vup20gvcg.png)
_4ceo34bhey.png)
_gt7kg9v121.png)
_0qlqbkjuxz.png)
_as2xmabp9c.png)
_6es1tj2hh0.png)
_eqgj1jrn0y.png)